体育案例|高县翰笙文体中心综合馆,国际级赛事场地
#体育场馆 ·2025-10-17 14:21:44

一.项目背景

高县翰笙文化体育艺术中心,占地面积约200亩,总建筑面积约8.68万平方米,
包含体育馆、游泳馆、体育场和综合公共服务中心,兼具全民健身、体育比赛、文化艺术交流、城市公共服务等功能。
四川锐丰西蜀科技公司承接该项目综合体育馆、体育场、游泳馆扩声系统专业设计、安装调试与保障服务等工作,
使用锐丰自有品牌LAX产品助力馆内高标准系统建设,为各类赛事使用及文体活动的开展提供稳定的技术支持。
高县翰笙文体中心综合体育馆
高县翰笙文体中心综合体育馆建筑面积1.2万平方米,拟设固定座位和可移动座位3000个。
场馆以国家体育建筑乙级标准建设,投入运行后能承办各种大型综合性运动会、排球、篮球等国际、国内顶级赛事使用需求。
首场国家级赛事举办
·赛事2023-2024中国排球超级联赛
时间:
女排:2023年11月4日至2024年2月6日
男排:2023年11月12日至2024年4月21日
二.综合馆项目需求
赛事扩声清晰度
对声音进行高效、精确的聚焦,有效地控制音波的散射,大幅度减少声反射,降低噪声的引入。
保证声音的清晰度、传输的稳定性以及音效的直达声效果,赋予在场运动员与观众最佳的听觉体验。
比赛、观众区域扩声全覆盖
举行大型比赛时声场能全面覆盖整个场馆,音质分布均匀,使每个位置的观众都能感受到比赛激烈振奋的气氛。
声色细节还原
配备超低频,扩展低频重放下潜,声色细节更还原,从而使场馆的音效更加优质和吸引人。




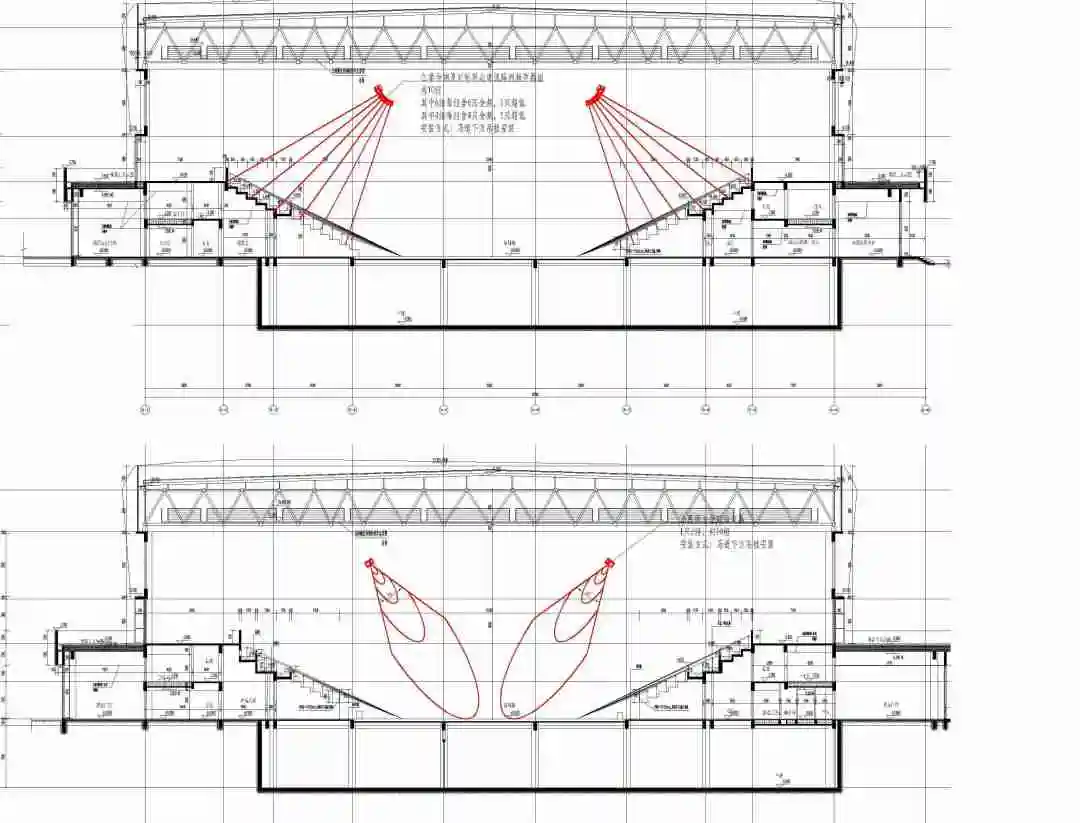
场馆扩声系统平面布置图
三.施工过程



四.比赛现场


根据场地建声条件及大型赛事需求,观众席四角使用LAX AT210双10寸线阵列扬声器+LAX ATH18B单18寸超低频扬声器作为线阵列组搭配,
吊挂安装于体育馆马道下方,全面覆盖观众席区域。
采用科学合理的分散布局,使整个场馆内都能享受到清晰的扩声服务,
为在场观众带来一场热情澎湃、不虚此行的排球比赛感受。


体育馆比赛区域上方用LAX TH915全频扬声器负责全场扩声覆盖,
可以充分保证比赛现场的扩声质量,让所有参赛选手、评委和观众都能感受到身临其境的现场氛围。
五.项目赋能文化体育


锐丰西蜀科技始终秉持着安全第一、质量为王、服务至上、创一流的理念,坚持为客户提供专业、高效的技术解决方案和优质、满意的服务。
